Емкости подземные горизонтальные дренажные ЕП, ЕПП
От -45 до 80 °C
до 9 баллов
ООО "НПО "Спецнефтемаш"
Типоразмеры в наличии:
Емкость подземная горизонтальная дренажная (ЕП, ЕПП) - это горизонтальный резервуар, в строении которого присутствуют люки и конические днища и цилинрические обечайки. Люки нужны для откачки продуктов, находящихся на хранении внутри емкости. Откачка производится при помощи насоса погружного типа. Люки также могут быть использованы для регулярного осмотра, а также ремонта конструкции. Производство подземных емкостей для нефтепродуктов ведется в соответствии с имеющимися стандартами и с применением современных способов подготовки металла, его сварки, обработки специальными антикоррозийными средствами и т. д.
Основным направлением деятельности ООО "НПО "Спецнефтемаш" является производство емкостей ЕП и ЕПП с номинальным объемом от 1 до 63 м3. Компания давно закрепила свои позиции на рынке и зарекомендовала себя как ответственный поставщик качественных подземных резервуаров. Налаженное производство подземных дренажных емкостей с подогревом и без подогрева позволяет поставлять заказчикам надежные изделия, отвечающие всем требованиям качества.
Особенности использования и сфера применения
Емкость ЕП / ЕПП (емкость подземная дренажная) применяется в различных сферах, но их основной задачей является хранение слитых остатков продуктов нефтеперерабатывающей или любой другой промышленности. В реалиях отечественного рынка существует множество предприятий, нуждающихся в емкостях, в которые можно произвести слив остатков отработанной жидкости. В емкостях для слива дренажа производители также допускают хранение жидких веществ, в составе которых содержится не более 1,8 процента сероводорода.
Типы и виды
Специалисты выделяют два основных типа стальных резервуаров для хранения и слива дренажа:
- емкости ЕПП с подогревателем;
- емкости ЕП без подогревателя.
Главным отличием этих двух основных видов является наличие или отсутствие нагревательного элемента и, соответственно, подогрева. Это определяет сферу использования емкостей, а также их эксплуатационные характеристики.
В зависимости от используемого обогревателя подогреваемые емкости подземные горизонтальные можно разделить еще на два подвида:
- с нагревателем типа змеевик;
- с использованием нагревающего кабеля.
ООО "НПО "Спецнефтемаш" производит все вышеперечисленные типы подземных дренажных ёмкостей.
Эксплуатационные характеристики
Горизонтальные дренажные емкости с подогревом и без обязательно должны иметь покрытие, защищающее внутренние стенки изделия от разрушительного воздействия коррозии. Специалисты рекомендуют эксплуатировать емкостные стальные резервуары ЕП и ЕПП в следующих условиях:
- хранение продуктов, относящихся ко второму или четвертому классам опасности. Узнать подробнее о классах опасности и получить полный перечень веществ, имеющих этот класс, можно изучив ГОСТ 12.1.007-76;
- температура продукта хранения не должна быть ниже -15 и выше +80 градусов;
- давление внутри дренажной емкости с подогревом и без подогрева не должно превышать 0,07 МПа;
- сливаемые жидкости или продукты деятельности не должны быть плотнее 1000 кг/м³.
В случае использования горизонтальной подземной дренажной емкости в условиях низких температур, необходимо подобрать резервуар с металлическим змеевиком, который будет производить обогрев, используя пароводяную смесь. Того же эффекта обогрева можно добиться применяя подземные вариации с нагревающим кабелем.
Особенности обогрева дренажной емкости ЕПП
Типы обогревателя ЕП:
- со змеевиком;
- электрическая система обогрева.
Подземный стальной резервуар с подогревом (при помощи кабеля) включает в себя следующие элементы:
- непосредственно кабель, выступающий в роли модуля нагрева;
- системы, при помощи которой производится управление температурой и прочими параметрами.
В качестве основного носителя тепла в современной дренажной емкости ЕПП со змеевиком может применяться пар.
Выбор оптимального вида зависит от специфики хранимого продукта, условий окружающей среды и непосредственно пожеланий или требований заказчика.
| Емкость подземная дренажная ЕПП с электрообогревом: | ЕПП со змеевиком: |
![]() |
![]() |
|
При электрообогреве используется саморегулируемый кабель. Система включает в себя:
|
Этот тип конструкции предполагает наличие нагревающего элемента в виде змеевика. Основным источником подогрева чаще всего выступает водяной пар, иногда может быть использован 60-процентный раствор ДЭГ или вода. Дополнительно в конструкцию емкости включается колодец, подвергающийся постоянному нагреву. |
Технические параметры
Емкости подземные дренажные - это резервуары, эффективная и безопасная работа которых может осуществляться при давлении не больше 0,07 МПа. В соответствии с установленными стандартами подземная емкость с подогревателем и без него может иметь объем от 1 куб. метра до 63 куб. метров. В структуру стального резервуара обязательно входят конические днища, обечайки и два люка, с их помощью осуществляется техническое обслуживание системы. Один люк применяется при сливе хранимой жидкости, а второй - как доступ к подземному стальному резервуару во время профилактических осмотров или при ремонте оборудования. Используя этот люк, специалисты могут производить очистку дренажной емкости, ее продувку или промывку.
В ЕП/ЕПП допустимо хранение продуктов, имеющих класс опасности от второго до четвертого (определить класс опасности продукта можно, ориентируясь на ГОСТ 12.1.007-76).
Температура жидкостей, находящихся внутри дренажной емкости, может варьироваться от -15 до +80 градусов, при этом его кинематическая вязкость не должна превышать 30•10-6 м²/с, а оптимальной плотностью является значение до 1000 кг/м3.
Для обеспечения предельной безопасности и повышения надежности дренажной емкости в ее конструкцию включаются штуцеры и патрубки. Их используют для установки дополнительного оборудования, например, для проведения измерений и контроля работы всей системы.
В компании ООО "НПО "Спецнефтемаш" изготовление ЕП(ЕПП) происходит в соответствии с ТУ 3615-001-24009276-2015. Дополнительно в компании можно заказать патрубки и спецоборудование для установки контрольно-измерительных приборов или инструментов для технического обслуживания системы.
|
Номинальный объем ЕП, м3 |
Диаметр обечайки, мм |
Общая длина, мм |
Толщина стенки, мм |
Масса ЕП (масса ЕПП), кг |
| 8 | 2000 | 2900 | 8 | 2800 (2850) |
| 12,5 | 2000 | 4300 | 8 | 2860 (2920) |
| 16 | 2000 | 5300 | 8 | 3350 (3430) |
| 20 | 2400 | 4830 | 8 | 3590 (3650) |
| 25 | 2400 | 5830 | 8 | 4220 (4300) |
| 40 | 2400 | 9030 | 8 | 5880 (6000) |
| 63 | 3000 | 9250 | 10 | 8860 (8990) |
Материальное исполнение
Решив купить емкость ЕПП или ЕП, нужно учитывать, что они производятся в различных исполнениях. Можно выделить три вида исполнения подземных емкостей и резервуаров:
- дренажный резервуар 1 исполнения, который рассчитан на температуру воздуха не ниже -20 градусов Цельсия. При производстве применяется сталь Ст3сп;
- емкость дренажная 2 исполнения — температура может опускаться до -40 градусов. В процессе изготовления применяется сталь 09Г2С-9;
- подземный резервуар 3 исполнения предполагает использование стали 09Г2С-6 и способен работать в температурном режиме до -60 градусов.
Требования к сейсмичности площадки строительства
Благодаря передовым технологиям производства, резервуарное и емкостное оборудование ООО НПО "Спецнефтемаш" способно выдерживать сейсмические воздействия вплоть до 9 баллов по шкале MSK-64. Проведенные в сентябре 2017 года испытания подтвердили это на практике, в результате чего был получен Сертификат Соответствия требованиям нормативных документов ГОСТ 30546.1-98, ГОСТ 30546.2-98, ГОСТ 30546.3-98.
Таким образом, если вам необходимо качественное резервуарное или емкостное оборудование при строительстве объектов нефте-газовой промышленности в сейсмически активных районах, ООО НПО "СпецНефтеМаш" готов удовлетворить ваш спрос.
Условные обозначения и маркировка, применяемая при заказе ЕП и ЕПП
Заказывая дренажные емкости подземные горизонтальные ЕП, необходимо знать маркировку, применяемую производителем. Это позволит получить максимум полезной информации о подземном сосуде, не читая его полного описания и инструкции к эксплуатации. В реалиях отечественного производства практикуется следующая маркировка:
ЕП(ЕПП)-1-2-3-4-Т-К, где
- тип дренажной емкости;
- 1 - номинальный объем, измеряемый в м3;
- 2 - диаметр дренажной емкости (измерения даются в соответствии с параметрами внутренней части). Единицей измерения являются миллиметры;
- 3 - высота горловины. Измеряется в миллиметрах и может быть представлена в трех основных значениях: 900, 1300, 1600 мм;
- 4 - особенности исполнения;
- Т - присутствие термической обработки материала;
- К - наличие подогревателя в штуцере насосного оборудования.
Основные нормативные документы
Оборудование, производимое компанией ООО "НПО "Спецнефтемаш", обязательно соответствует ГОСТ 34347-2017 (взамен устаревшего ГОСТ Р 52630-2012) «Сосуды и аппараты стальные сварные». В производстве используются передовые технологии и инновационные решения.
Информация для Заказчиков
В компании ООО "НПО "Спецнефтемаш" можно заказать и купить подземные емкости дренажные горизонтальные разных видов, а также специализированное оборудование для их обслуживания и эффективной эксплуатации с доставкой в Белгород и другие регионы России и СНГ. Цена нашей продукции одна из самых низких на Российском рынке. Наши специалисты помогут не только определиться с наиболее подходящим видом, но и осуществят их доставку с использованием железнодорожного или автомобильного транспорта.
Для того чтобы сделать заказ, достаточно позвонить в офис компании или связаться с нами по электронной почте. Мы гарантируем высокое качество и надежность изделий, а также их своевременную доставку.
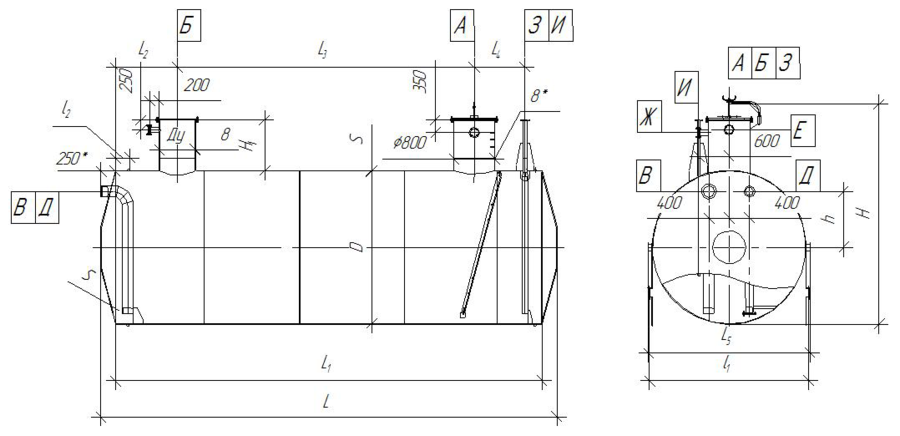
Типовые чертежи
ТЕХНИЧЕСКИЕ ХАРАКТЕРИСТИКИ
-
Основные параметры емкостей ЕП
Параметры емкости Значение Давление, МПа рабочее, не более 0,07 расчетное 0,07 пробное 0,2 t,°С рабочая, не более 80 расчетная 100 Среда в емкости: остатки светлых и темных нефтепродуктов, нефть, масла, с содержанием Н2S в газовой фазе не более 1,8% объемн.; (для термообработаных емкостей свыше 1,8% объемн., а также остатки щелочных сред (РН>5) при любом содержании Н2S).
Характеристика среды: класс опасности — 2,3,4 по ГОСТ 12.1.007-76, категория взрывоопасности — IIA, IIB по ГОСТ Р 51330.11-99, группа взрывоопасной смеси — Т3 по ГОСТ Р 51330.5-99, пожароопаснаяГруппа сосуда по ОСТ 26 291-94 5а Прибавка для компенсации коррозии, мм: — без термообработки 2,0 — с термообработкой 4,0 Расчетный срок службы, лет: — без термообработки 20 — с термообработкой 12 Сейсмичность по 12-ти бальной шкале, баллов, не более 6 -
Основные параметры емкостей ЕПП
Параметры емкости Значение в емкости Значение в змеевике Давление, МПа рабочее, не более 0,07 0,5 расчетное 0,07 0,7 пробное 0,2 1 t,°С рабочая, не более 80 164 расчетная 100 180 Среда в емкости: остатки светлых и темных нефтепродуктов, нефть, масла, с содержанием Н2S в газовой фазе не более 1,8% объемн.; (для термообработаных емкостей свыше 1,8% объемн., а также остатки щелочных сред (РН>5) при любом содержании Н2S).
Характеристика среды: класс опасности — 2,3,4 по ГОСТ 12.1.007-76, категория взрывоопасности — IIA, IIB по ГОСТ Р 51330.11-99, группа взрывоопасной смеси — Т3 по ГОСТ Р 51330.5-99, пожароопасная.Группа сосуда по ОСТ 26 291-94 5а — Прибавка для компенсации коррозии, мм: — без термообработки 2,0 — — с термообработкой 4,0 — Расчетный срок службы, лет: — без термообработки 20 — — с термообработкой 12 — Сейсмичность по 12-ти бальной шкале, баллов, не более 6 — -
Таблица штуцеров емкостей ЕП
Обозначение Назначение Размеры в зависимости от объёма аппарата А Люк 800 Б Для насоса 700 В Вход продукта 200 Д Выход продукта аварийный 150 Е Выход пара 100 Ж Воздушник 100 З Для уровнеметра 65–10 И Для термопреобразователя 50 -
Таблица штуцеров емкостей ЕПП
Обозначение Назначение Размеры в зависимости от объёма аппарата А Люк 800 Б Для насоса 700 В Вход продукта 200 Д Выход продукта аварийный 150 Е Выход пара 100 Ж Воздушник 100 З Для уровнеметра 65–10 И Для термопреобразователя 50 К Вход теплоносителя 20–50 Л Выход теплоносителя 20–50 -
Габариты емкостей ЕПП






